Our condominium units are individually owned and are uniquely affordable in Southern California's near-perfect climate.
The Towers are concrete, steel, and concrete block. Floors are concrete and party walls are concrete block which assures optimum privacy. All of our plans feature floor to ceiling glass doors and panels and modest kitchens. Some units have courtyards and patios. The interiors, including walls, can be customized to owner preferences with fast and simple approvals.
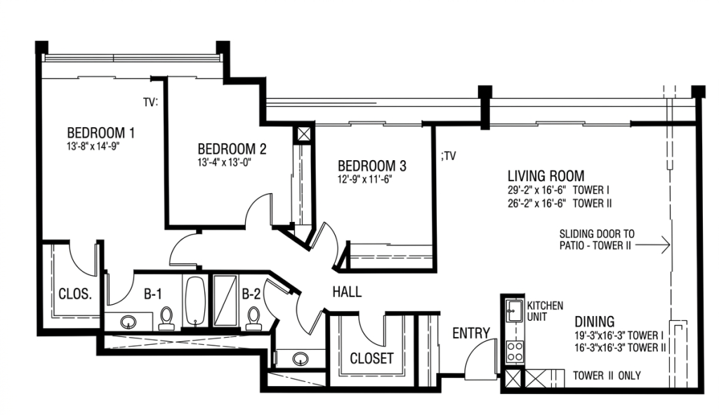
Note: Unit dimensions and/or square footage vary according to location within The Towers.
(38) 500sf A units (studio) and (66) 625sf B units (1 bedroom)

(39) 975sf G units(1 bedroom with enlarged living room)

(55) 1100sf D units (2 bedroom with living room)

(103) 1200sf C units (2 bedroom w enlarged living and dining rooms)

(8) 1600sf H units (3 bedrooms with living room and dining area)

(2) 1800sf F units (3 bedrooms with enlarged living and dining rooms)
